Ringstand 58c - Tobruk

Ringstand 58c – podstawowy schron bojowy „twierdzy Włocławek”

Podstawowym schronem bojowym stosowanym do budowy umocnień w 1944 roku w centralnej Polsce był Ringstand 58c (Bauform 201), zwany potocznie „tobrukiem”, oczywiście nie był to jedyny stosowany typ schronów, ale ze względu na łatwość i szybkość wykonania był on najpowszechniej stosowany.

Ringstand 58c to schron bojowy do prowadzenia ognia okrężnego, który stał się najpowszechniej stosowanym obiektem fortyfikacyjnym przez wojska niemieckie. Tego typu schrony rozsiane są po całej Europie. Powstało jego kilka różnych odmian, ale wokół Włocławka mamy do czynienia tylko i wyłącznie jednym jego typem – formą podstawową.

W pełni widoczny schron - doskonale widać ślady szalunków

W pełni widoczny schron – doskonale widać ślady szalunków

Ringstand 58c to niewielki dwuosobowy schron ze zbrojonego betonu. Składa się z dwóch części – przedsionka stanowiącego magazyn amunicji i będący jednocześnie schronieniem dla załogi oraz szybem strzelniczym z otworem od góry, w którym mógł być zamontowany karabin maszynowy, w zamyśle miał być to MG42, ale stosowane były praktycznie wszystkie będące na stanie armii karabiny maszynowe.

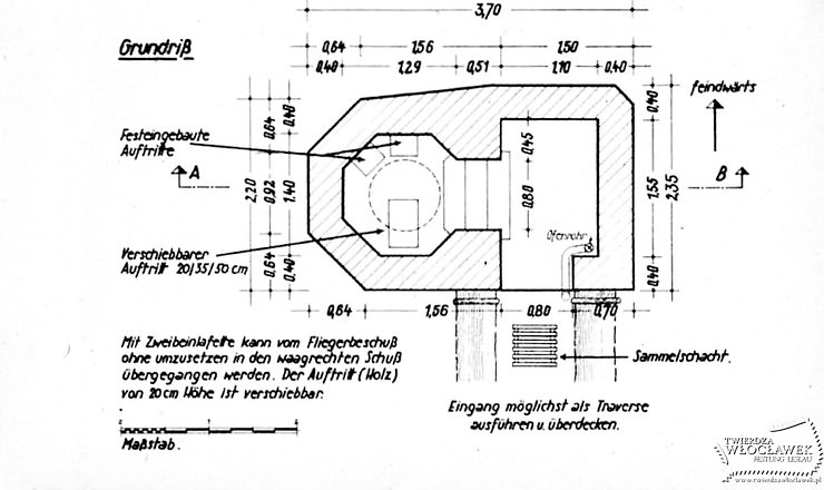
Schemat schronu Ringstand 58c
Schemat schronu Ringstand 58c

Choć „tobruki” nie były imponującymi budowlami – 3 metry długości, 2 szerokości i zagłębione w grunt na około 2,5-3 metry – były niezwykle groźne i trudne do wykrycia i zniszczenia. Niemcy docenili zalety tego typu fortyfikacji widząc zabójczą skuteczność tego typu umocnień stosowanych przez armię włoską w Afryce – stąd potoczna nazwa tego typu schronu „tobruk”. Niemcy udoskonalili pomysł Włochów i stworzyli budowlę, która jako jedyna została nawet zaadaptowana do swoich potrzeb przez Armię Czerwoną.

Tak ukrytego schronu nie sposób łatwo odnaleźć

Tak ukrytego schronu nie sposób łatwo odnaleźć

Na czym polegała skuteczność Ringstandów 58c? Otóż schron ten można było bardzo łatwo ukryć, budowane one były najczęściej na wzniesieniach w taki sposób, że ich jedyną częścią widoczną na poziomie gruntu był betonowy kołnierz otworu strzelniczego, chroniący przed zalewaniem schronu w czasie opadów. Niewielkie wejście znajdowało się na tyle schronu i zazwyczaj było połączone z liniami okopów. Dzięki takiej konstrukcji schron można było bardzo łatwo zamaskować, przykryty otwór strzelniczy oraz zamaskowane siatką maskującą wejście było niemożliwe do wykrycia z lotu ptaka. Dla piechoty także wykrycie „tobruków” było niezwykle trudne, obrońcy mogli schronieni wyczekać, aż atakujący podejdą praktycznie pod sam schron i dopiero wtedy się ujawnić.

Zbrojenie otworu strzelniczego

Zbrojenie otworu strzelniczego

Widok na otwór strzelniczy z komory amunicyjnej

Widok na otwór strzelniczy z komory amunicyjnej

Kolejnym atutem „tobruków” była prostota ich wykonania. Budowa nie wymagała ogromnych środków, w wykopanym otworze powstawał szalunek, w którym wylewano dolną część schronu, następnie budowano szalunki i wykonywano zbrojenia ścian i płyty wierzchniej, którą przykrywano formą do wykonania właściwego odlewu. Po utwardzeniu się betonu schrony często były od zewnątrz smarowane smołą w celu izolacji przeciw wilgoci a następnie zasypywane tak, by ukryć je na poziomie gruntu. Wykonanie takiego schronu nie wymagało wielkiej wiedzy technicznej i można było go wykonać dzięki niewykwalifikowanej sile roboczej. Około 11 m3 betonu zbrojonego grubym drutem stalowym w zwartej bryle pozbawionej słabych punktów jest praktycznie niemożliwe do zniszczenia bez użycia ciężkiej artylerii lub dużej ilości materiałów wybuchowych. Przekonali się o tym wszyscy ci, którzy po wojnie chcieli je usunąć ze swoich pól i posesji.

Izolacja na tym schronie przetrwała dziesięciolecia

Izolacja na tym schronie przetrwała dziesięciolecia

Wyposażenie „tobruków” było niezwykle ubogie i bardzo zróżnicowane, zasadniczo jedynym wyposażeniem powtarzającym się w każdym schronie był metalowy pierścień w otworze strzelniczym służący jako podstawa do lawety karabinu maszynowego. W schronach stosowano ponadto półki do amunicji na metalowych podstawach zatopionych w betonie, stopnie wypadowe umożliwiające wyjście do ataku przez otwór strzelniczy, „świńskie ogonki”, czyli zaczepy do siatki maskującej nad wejściem. W większości schronów pozostawiony był 1 lub dwa niewielkie otwory kwadratowe o przekroju 10-15 cm. Otwór w pobliżu wejścia miał służyć zimą, można było nim wyprowadzić rurę będącą kominem małego metalowego piecyka, którym ogrzewała się załoga schronu. Drugi otwór wentylacyjny umiejscowiony był czasami w komorze strzelniczej, dzięki czemu wytwarzał się ciąg oddymiający to niewielkie pomieszczenie. Czasem w środku schronu wykonywane były zagłębienia w ścianach mogące służyć jako półki i stopnie.

Wyposażenie schronu

Skromne wyposażenie schronu – po lewej półka na amunicję, po prawej uchwyty od stopnia wypadowego. Widać także metalowy pierścień otworu.

Opcjonalnym wyposażeniem „tobruków” były pokrywy do otworu strzelniczego oraz drzwi drewniane obijane od zewnątrz blachą. Drzwi jednak były nie otwierane a wstawiane, gdyż schrony nie miały na wyposażeniu zawiasów do nich. Wewnątrz schronu nie było za dużo miejsca, dwóch żołnierzy mogło tam zgromadzić trochę amunicji, ale było tam zbyt ciasno, by móc się swobodnie poruszać w ekwipunku. Nie było tam miejsca na posłanie ani nawet na miejsce do wygodnego siedzenia.

Świński ogonek nad wejściem do schronu

Świński ogonek nad wejściem do schronu

Otwór kominowy

Otwór wentylacyjny (kominowy). Po prawej pozostałości oryginalnego szaluku w jednym ze schronów.

Schrony nie były „zamieszkiwane” przez załogi, żołnierze obsadzali schron w razie potrzeby, nie musieli w nich siedzieć cały czas. Skromne wyposażenie schronów pozwalało nawet na ich pozostawianie bez nadzoru bez groźby uszkodzenia lub ograbienia „tobruków” przez miejscową ludność. W momencie ataku zaopatrzenie schronu w amunicję i montaż karabinu maszynowego nie zajmowały dużo czasu – nawet w kilkanaście minut schron mógł być w pełni gotowy do walki.

Ringstand 58c
Ringstand 58c
Ringstand 58c
Ringstand 58c

Przykładowe obsadzenie schronu

Ogień mógł być prowadzony z „tobruków” w każdym kierunku, strzelec stojąc w otworze strzelniczym był w niewielkim stopniu narażony na ogień nieprzyjaciela. Głowę i wystającą z otworu strzelniczego część korpusu chronić mogła gruba płyta stalowa, stanowiąca rodzaj tarczy. Obracała się ona wraz z karabinem na wspomnianym wcześniej metalowym pierścieniu. Żołnierz mógł strzelać w każdym kierunku a nawet w górę w przypadku konieczności obrony przeciwlotniczej.

Poniżej rekonstrukcje lawet oraz wieży pancernej dla karabinu maszynowego, które można zobaczyć w skansenach fortyfikacyjnych w Polsce.

– rekonstrukcja lawety karabinu maszynowego w Skansenie Rzeki Pilicy w Tomaszowie Mazowieckim

Laweta MG do Ringstand 58c
Laweta MG do Ringstand 58c
Laweta MG do Ringstand 58c
Laweta MG do Ringstand 58c

– rekonstrukcja lawety karabinu maszynowego w Forcie Wielka Księża Góra w Grudziądzu

Laweta karabinu MG dla Ringstand 58c
Laweta karabinu MG dla Ringstand 58c
Laweta karabinu MG dla Ringstand 58c
Laweta karabinu MG dla Ringstand 58c
Laweta karabinu MG dla Ringstand 58c

– rekonstrukcja wieży pancernej dla karabinu maszynowego w Forcie Wielka Księża Góra

Wieżyczka karabinowa dla Ringstand 58c
Wieżyczka karabinowa dla Ringstand 58c

Taka sama budowa schronów w niemal całej Europie sprawiała, że żołnierze mogli „z marszu” obsadzać je bez konieczności zapoznania się z danym egzemplarzem. Ujednolicenie budowy nie było jednak aż tak wielkie jak mogłoby się wydawać. Nawet na omawianym terenie wokół Włocławka można wyróżnić kilka „typów” schronów oraz spore zróżnicowanie w wyposażeniu. Nie ma tu jednak Ringstandów 58c w wersjach specjalnych, np. przystosowanych do montowania na nich wież czołgów.

Budowa schronu

Budowa schronu typu „tobruk” na Wale Atlantyckim
Ze zbiorów NAC

Pokrywa otworu strzelniczego

Prowizoryczne maskowanie otworu strzelniczego
Ze zbiorów NAC

Pokrywa otworu strzelniczego

Pokrywa otworu strzelniczego
Ze zbiorów pamyat-naroda.ru

Literatura:
Jurga Robert M. „Fortyfikacje III Rzeszy w rysunkach przestrzennych”, Zielona Góra 2010
Zdjęcia rekonstrukcji historycznej z udziałem GRH Wiking
Rysunki Bildheft – Neuzeitlicher Stellungsbau.